一、概述:
原料桶加热烘箱是专业用于200L原料桶、吨桶,以及各类原料溶解和恒温加使用的加热箱,具有控温精确、温度偏差小、安全系数高的特点,加热和恒温时原料受热均匀,确保原料品质性能可靠,此设备是化工、添加剂、医药中间体、润滑油、石化产品等行业生产的必备设备。
设备的加热源可采用多种方式,如:蒸汽加热、电加热、热水加热、导热油加热,也可采用两种加热源兼顾同时使用,具备节能、高效的使用组合方式。
原料加热烘箱分为普通型和防爆型两种制作方式,防爆型可用于各类易燃易爆产品和区域,防爆方式采用标准防爆要求制作。
此设备已在国内外大型企业获得使用案例,并得到一致好评和赞誉,如:杜邦(深圳)有限公司、国际香精香料(张家港)有限公司、迈图高新材料(南通)有限公司、迈图集团(日本)有限公司、道达尔润滑油(天津)有限公司、纳尔科工业服务(南京)有限公司、迪爱生化工(张家港)有限公司、烟台新秀化学有限公司、安庆虹泰新材料有限公司、南京科润新材料有限公司等企业。
二、工作原理简介:
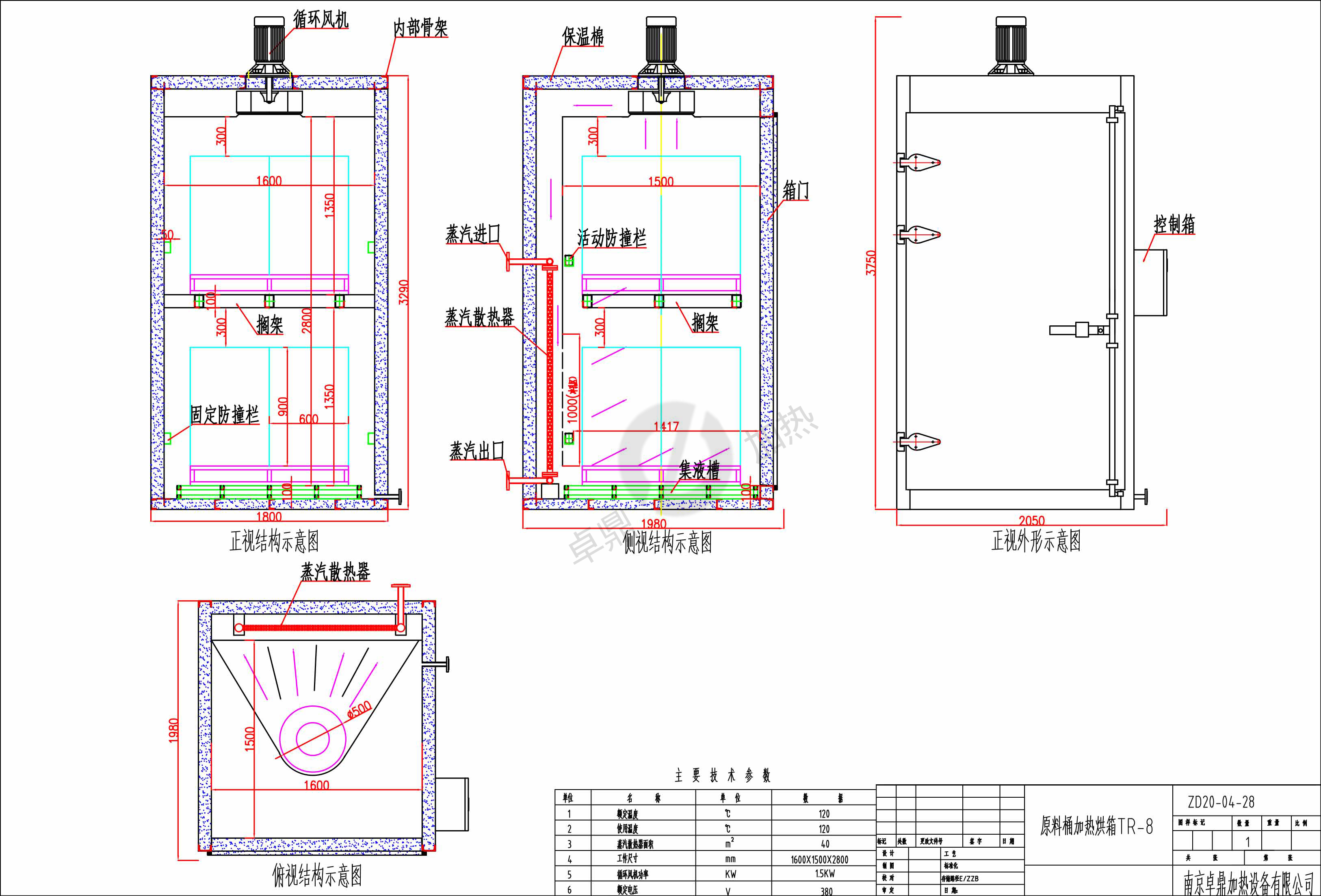
原料桶加热烘箱加热采用对流式加热方式,该加热方式具有加热速率高、温度均匀性好的特点,安装在风道内的加热器通过箱顶部的循环风机强制送风,将加热器散发的温度送入工作室,并强制作用于料筒表面,使之快速传导受热,工作室顶部的回风口将作用后的降低温度的热空气吸回风道后再经过加热器升温送入工作室,如此周而复始构成循环系统。
烘箱温度自动控温,仪表根据变送器采集的信号,仪表P.I.D自动计算控温原件(比例调节阀、角座阀、电磁阀、可控硅)的通断时间,做到精确控温的目的,仪表也可加装DCS 通讯接口,便于远程监控和控制操作。设备的控制配置监控保护装置,当主控部件损坏或失灵时造成温度失控时,监控检测到温度异常后紧急切断加热源并发出声光报警,以此确保原料和设备的安全。
三、结构特点:
烘箱整机采用槽钢作为骨架,外壳包覆薄板(不锈钢、镀锌板、Q235冷轧钢板),结构稳定牢固,确保长期重载下不会变形。
烘箱保温材料采用块状阻燃岩棉(容重120g/cm²)作为保温层,此保温棉具有重量轻、密度大、蓄热量小的特点。箱门密封条采用硅橡胶空心胶条,硅橡胶具有耐腐蚀、耐高温(≤220℃)、不易老化的特点。
烘箱内部可叠加双层使用,可节约设备占地面积,上部叠加层可以直接放置在下层料筒上,也可加装上层搁架,对于箱内不同原料的装取操作更为便捷。设备工作室三面安装防撞装置,可有效防止装载时叉车对箱体的撞击,从而保护了箱体不收损伤。
烘箱底部设有集液槽,当料筒破损发生泄漏可有用于原料收集,通过底部管道直接在设备外部回收,操作简单、安全、快捷。集液槽内的底层料架为活动料架,可取出后对集液槽和料架清洗处理。
![]() |
![]() |
![]() |
![]() |
![]() |
![]() |
四、CAD 结构示意图





五、技术参数
